Search
Search
Home
Products
Yurts
Yurts 101
Eagle Yurt
Raven Yurt
Canvas Cottage
Voyager Tent
Wall Tents
Tipis
Accessories
Hospitality
Design-to-Build
About Us
Rainier’s Story
Blog
Customer Reviews
Facility Tour
Shipping and Will Call
FAQs
Contact Us
Menu
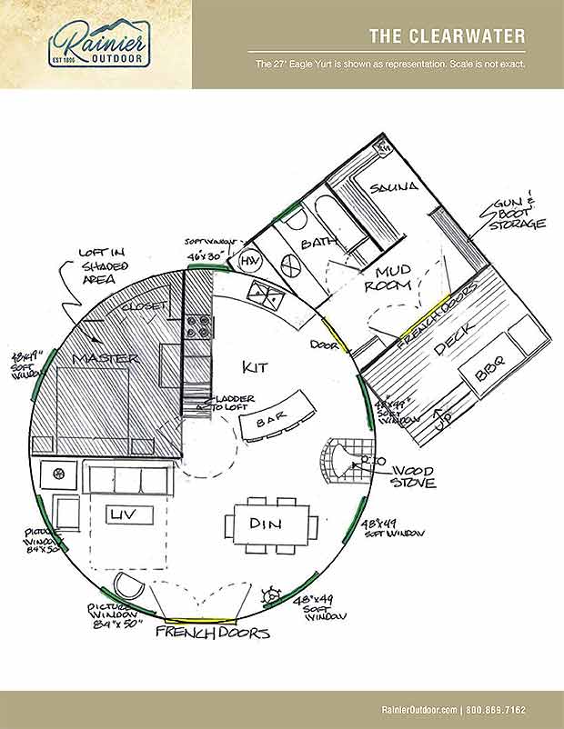
The Clearwater
Posted by
Mike Oberdick
June 8, 2025
On June 8, 2025
Newer
The Dickens
Older
The Charleston
Search
Home
Products
Yurts
Yurts 101
Eagle Yurt
Raven Yurt
Canvas Cottage
Voyager Tent
Wall Tents
Tipis
Accessories
Hospitality
Design-to-Build
About Us
Rainier’s Story
Blog
Customer Reviews
Facility Tour
Shipping and Will Call
FAQs
Contact Us
We use cookies to improve your experience on our website. By browsing this website, you agree to our use of cookies.
Accept
Shop
Wishlist
0
items
Cart
My account